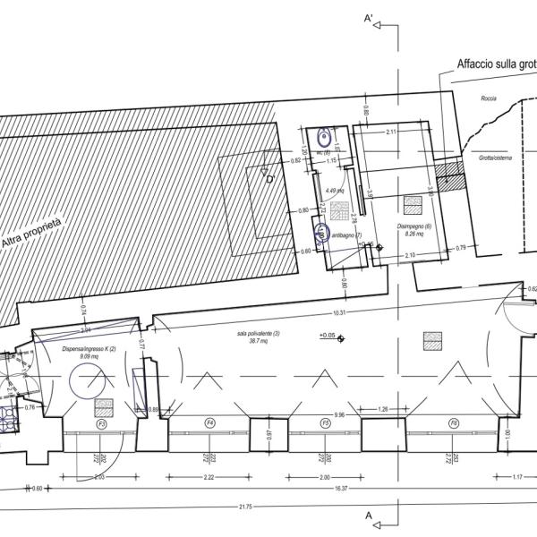
Intervento 4 - Ex Convento di Sant'Onofrio

Cesi porta dell'Umbria porta delle meraviglie

Realizzazione Residenze artistiche

AGGIORNAMENTI E PROCEDIMENTI IN CORSO

(Dicembre 2024) - Appalto integrato aggiudicato - verbale di consegna appalto prot. 36.353 del 29/02/2024 - 380 giorni a partire dal 29/02/2024 (progettazione def./esec. 80 gg e lavori 300 gg) - In data 20/05/2024 sono state consegnate le risultanze delle indagini geognostiche  - verbale di consegna del servizio prot 73.601 del 02/05/2024 - durata servizio 20 giorni; in attesa del progetto esecutivo - Conferenza dei Servizi chiusa.

M.1 C.  3 I. 2.1 - 3.4.4_4 – EX CONVENTO DI SANT’ONOFRIO  
Assegnazione:  1.500.000,00 €   - Assegnazione + opere indifferibili:   1.500.000,00 €   - CIG   9661348C93 - PFTE - Link alla procedura  
Appalto integrato per l'affidamento del servizio di progettazione ed esecuzione lavori. Approvazione proposta di aggiudicazione 
CUP F47B22000040004 - CIG B1715FD542 - AFFIDAMENTO DEL SERVIZIO DI INDAGINI GEOGNOSTICHE 
Ammissione O.E. all'apertura busta tecnica e nomina commissione di gara relativamente alla scelta del contrante, attraverso aggiudicazione con criterio dell'Offerta Economicamente più Vantaggiosa.

logo